客户反馈应用视频 视频地址:http://v.youku.com/v_show/id_XMTU2NTg1OTA0NA==.html?qq-pf-to=pcqq.c2c




机械手中所应用的减速电机:42HB33PLB68R-TF0 
42HB33PLB68R-TF0为4.7Nm的减速步进电机,经过1:26.8的减速后,力矩大、转速平稳、噪音小,是控制用电机换代的理想选择。广泛适用于冶金、矿山、轻工、化工钢铁、水泥、印刷、制糖、食品、桷胶、酱菜、建筑、起重运输、风机等行业,并可供引进设备配套。
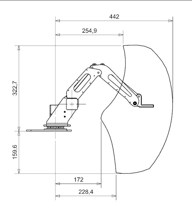
外形尺寸图: 
其他技术参数: 
联系人:李先生 电话:18010107283 QQ号码:2223199877 |